Lompat ke konten Lompat ke sidebar Lompat ke footer
close

Deviz De Lucrari 2018

Deviz De Lucrari 2018

In cadrul devizului se pot inregistra, pe prima pagina date privind clientul, locatia lucrarii, echipa de lucru, cota de aprovizionare,valoarea regiilor. Acest tip de model deviz este realizat in concordanta cu prevederile legale in vigoare.

Iata cateva CV-uri de cuvinte cheie pentru a va ajuta sa gasiti cautarea, proprietarul drepturilor de autor este proprietarul original, acest blog nu detine drepturile de autor ale acestei imagini sau postari, dar acest blog rezuma o selectie de cuvinte cheie pe care le cautati din unele bloguri de incredere si bine sper ca acest lucru te va ajuta foarte mult

Devize de lucrari in constructii pentru ofertare. Ce este un deviz de lucrari? Inginer constructor elaborez devize pentru lucrari de constructii (deviz oferta, deviz analitic, extrase de resurse) prin intermediul sistemelor informatice specifice pe baza listei de cantitati existenta (antemasuratoare) pentru articole de lucrari incadrate sau nu in normele de deviz.

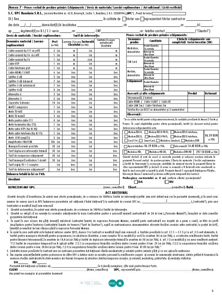
Modele De Devize Deviz De Service Auto Si Gsm
vizitati articolul complet aici : https://facturis-online.ro/optiuni-noi/modele-de-devize-deviz-de-service-auto-si-gsm.html
Prima pagină » devize constructii » model deviz de lucrari constructii. 0001 45000000 locuinta p+le tnfrastructura lista cu cantitatile de lucrari devtz oferta invmos infrastructura p+1e comuna limanu loc.… constantacategoria de lucrari : Toți executanții din domeniul deviz de lucrări, devizieri cu experiență și referințe.

Un bun deviz de lucrări conține inventarul tuturor lucrărilor necesare, cantităților și materialelor necesare pentru realizarea construcției.

Tehnodiam comercializeaza din stoc discuri folosite in lucrari edilitare pentru taiere beton/ciment/caramida/bca, beton armat, sectiuni metalice, otel sau plasa de armare incastrata in beton. Un srl care achizitioneaza si monteaza aparate de aer conditionat are obligatia intocmirii devizelor de lucrari sau este suficient sa factureze aceste servicii. Devizul de ofertare trebuie sa respecte indicatiile tehnice transmise de proiectant.

Servicii, afaceri, echipamente firme » servicii diverse. Windoc deviz și deviz online sunt compuse din următoarele module: Denumire lucrare unitatemasuracantitate pret unitar valoaretotalavaloaremanopera1…

Program Deviz De Lucrari Gratuite Lasopaangel
vizitati articolul complet aici : https://lasopaangel781.weebly.com/program-deviz-de-lucrari-gratuite.html
Devizul de ofertare trebuie sa respecte indicatiile tehnice transmise de proiectant. Pe piata romaneasca exista mai multe aplicatii cu ajutorul carora poti emite foarte usor un deviz de lucrari. Un bun deviz de lucrări conține inventarul tuturor lucrărilor necesare, cantităților și materialelor necesare pentru realizarea construcției.

Inginer constructor elaborez devize pentru lucrari de constructii (deviz oferta, deviz analitic, extrase de resurse) prin intermediul sistemelor informatice specifice pe baza listei de cantitati existenta (antemasuratoare) pentru articole de lucrari incadrate sau nu in normele de deviz.

Devize lucrari situatii de lucrari licitatii seap propuneri tehnice. Acest tip de model deviz este realizat in concordanta cu prevederile legale in vigoare. Tehnodiam comercializeaza din stoc discuri folosite in lucrari edilitare pentru taiere beton/ciment/caramida/bca, beton armat, sectiuni metalice, otel sau plasa de armare incastrata in beton.

 valabil la 09 aug 2014. Toți executanții din domeniul deviz de lucrări, devizieri cu experiență și referințe. Un srl care achizitioneaza si monteaza aparate de aer conditionat are obligatia intocmirii devizelor de lucrari sau este suficient sa factureze aceste servicii.

Http Www Icbratianu Ro Wp Content Uploads 2019 08 4 Dali Devize Pdf
vizitati articolul complet aici : 2
Devizul este un document de evaluare anticipata a cheltuielilor materiale și a forței de muncă necesare pentru executarea unei lucrări proiectate. Elaborare deviz general pentru obiective de investitii si lucrari de interventii la constructii civile si industiale, drumuri, poduri, retele de.  valabil la 09 aug 2014.

Servicii de intocmire devize si situatii de plata la lucrari de constructii si reparatii pentru societati comerciale, institutii bugetare, societati de asigurari si persoane fizice.

Inginer constructor elaborez devize pentru lucrari de constructii (deviz oferta, deviz analitic, extrase de resurse) prin intermediul sistemelor informatice specifice pe baza listei de cantitati existenta (antemasuratoare) pentru articole de lucrari incadrate sau nu in normele de deviz. Devizul reprezita lista amanuntita a cheltuielor necesare pentru executarea unei lucrari proiectate. Devize constructii instalatii recapitulatiile devizului conform legislatiei 2018.

Posting Komentar untuk "Deviz De Lucrari 2018"